(17)
مكتب م / هشام طارق للتدريب و الإستشارات الهندسية
Hesham Tarek Engineering Solutions شركة رائدة في مجال التدريب والاستشارات الهندسية
• نقدم برامج تعليمية متخصصة في الهندسة الإنشائية و المعمارية بأسلوب عملي واحترافي
• 13 سنة خبرة في مجال التدريب الهندسي
• 32 كورس متخصص في المجالات الهندسية المختلفة
• 12 محاضرين بخبرات عملية في أكبر الشركات بمصر والوطن العربي
• 12,000 مهندس من 50 دولة شرفونا بالثقة والانضمام إلينا في برامجنا التدريبية
• نهدف دائمًا إلى رفع كفاءة المهندسين وتأهيلهم لسوق العمل المحلي والعالمي بأحدث المعايير الهندسية


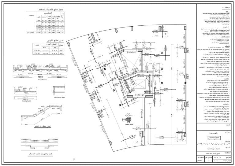
قطعة رقم G-69 – الحي الثامن – بيت الوطن – التجمع الخامس
تاريخ إنجاز المشروع : 30-9-2022 قطعة رقم G-69 – الحي الثامن – بيت الوطن -…

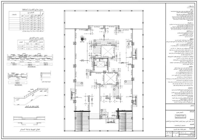
قطعة رقم G-35 – الحي الثاني – بيت الوطن – التجمع الخامس
تاريخ إنجاز المشروع : 8-1-2023 قطعة رقم G-35 – الحي الثاني – بيت الوطن -…

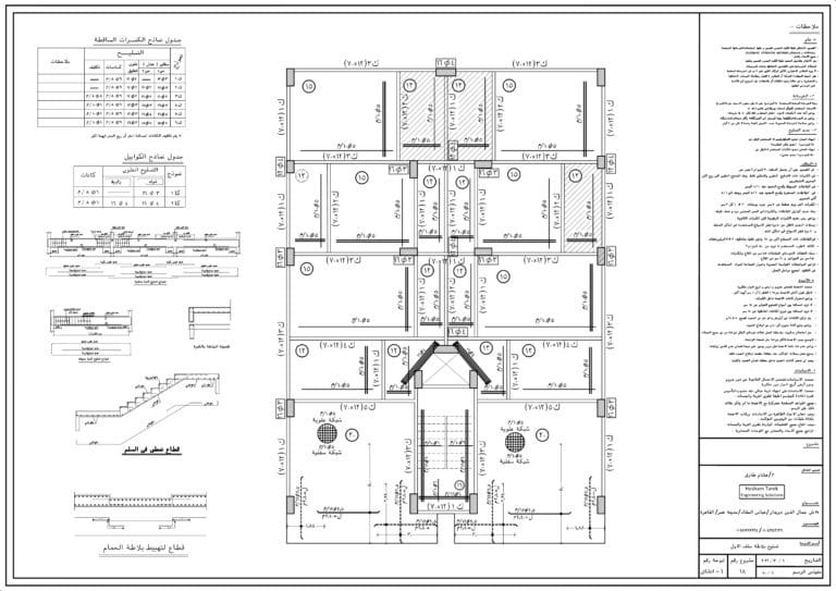
قطعة رقم D-274 – النرجس الجديدة – التجمع الخامس
تاريخ إنجاز المشروع : 10-2-2023 قطعة رقم D-274 – النرجس الجديدة – التجمع الخامس تم…

قطعة رقم D-75 – النرجس الجديدة – التجمع الخامس
تاريخ إنجاز المشروع : 1-3-2022 قطعة رقم D-75 – النرجس الجديدة – التجمع الخامس تم…
Here goes your text … Select any part of your text to access the formatting toolbar.














































































































































































